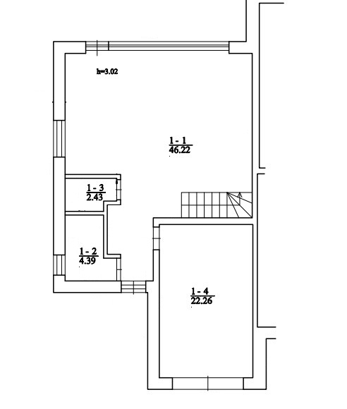
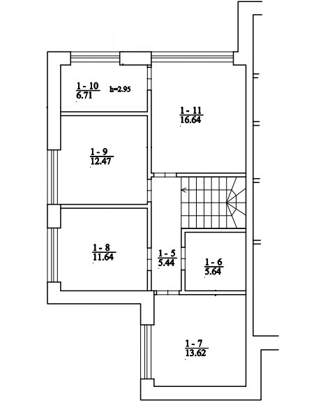
Nauji didelės kvadratūros kotedžai su garažais Laurų g. Miriniškiai (Ringaudų sen.)
Medžiais apsodinti ir tvoromis aptverti sklypai, asfaltuotas privažiavimas bei apšvietimas gatvelėje.
Projektas, kuris nustebins vitrininiais langais, estetika ir darbų kokybe.
Bendra informacija:
Kaina nuo 222 000 Eur
Meda +370 607 66663
















