Pagrindinė informacija:

Vieta: Šimkaičių g., Žaliakalnis

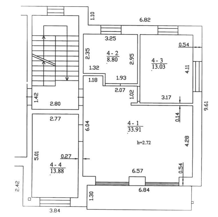
Bendras plotas: 69,62 kv. m

Statybos metai: 2025 m.

Aukštas: 2/3

Kambarių skaičius: erdvi svetainė su virtuve, 2 miegamieji

Šildymas: dujinis (grindinis, reguliuojate temperatūrą kiekvienoje zonoje atskirai)

Baigtumas: dalinė apdaila

Erdvus balkonas pietinėje pusėje

Aliumininiai 3 stiklo paketų langai ir durys

Aukštos lubos, išvedžiota rekuperacinė sistema, paruoštos vietos kondicionieriams
Papildoma informacija:

Butui priklauso atskira stovėjimo vieta, pilnai paruošta elektromobilių įkrovimui (įrengtos visos elektros reikalingos instaliacijos)

Galima įsigyti atskirą, šildomą sandėliuką, saugiomis šarvuotomis durimis, pilnai paruoštą naudojimui su individualiu numeriu ir nuosavybės dokumentais

Bendroje teritorijoje numatyta speciali vieta dviračiams, paspirtukams, vaikų vežimėliams ir kitai įrangai

Išasfaltuotas privažiavimas

Išklotos aukštos kokybės trinkelės

Galimybė įsirengti saulės baterijas
Buto kaina – 270 000 Eur.
Stovėjimo vietos kaina – 10 000 Eur.
Sandėliukų kainos: didesniojo – 12 000 Eur, mažesniojo – 10 000 Eur.